Mietobjekte in und bei Brandenburg an der Havel

Vermietungen provisionsfrei. - Auskunft / Besichtigung: 0151/561 642 09

2-3 Raum Wohnungen im Anwesen Vereinsstraße 36a, 14770 Brandenburg

Aussenansicht der Wohnung

Die Wohnungen zur Vereinsstraße liegen in verkehrsberuhigter Lage, unmittelbar gegenüber den Grünflächen der Fachhochschule. Die Wohnungen zur Clara-Zetkin-Straße liegen auch zu einer, mit blühenden Bäumen, bepflanzten verkehrsberuhigten Wohnstraße.

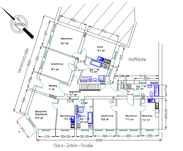
Grundriss Erdgeschoss

Erdgeschoss

Grundriss 1.- 3. Obergeschoß

1.- 3. Obergeschoß

Grundriss Dachgeschoss (-Schräge)

Dachgeschoss (-Schräge)

Mietübersicht Vereinsstraße 36a

Mittlere Wohnungen
Rechte Wohnungen

Allgemeine Beschreibung

Die Wohnungen im Erdgeschoss sind mit elektrisch betriebenen Rollläden auf der Straßenfront ausgestattet. Die Küchen der 2-Raum Wohnungen sind mit Fenstern ausgestattet und haben die Vorrüstungen für Elektroherd (240V-einphasig/16A), Geschirrspülmaschine, und teilweise 5L-Elektroboiler unter der Spüle. Die Installationswand der Küche ist, bis in eine Höhe von 1,5 m, gefliest. - siehe Bilderserien - Die Bäder sind mit Fenstern ausgestattet und komplett bis auf Türhöhe (2,2 m) gefliest und der Boden ist ebenfalls mit Fliesen belegt. Die Bäder verfügen über Vorrüstungen für Waschmaschine und Abluft-Wäschetrockner. Die Wände der übrigen Räume werden standardmäßig mit Rauhfaser weiß ausgestattet. Die Gaszähler und der Elektrozähler je Wohnung befinden sich im allgemein zugänglichen Keller. Zu jeder Wohnung wird ohne Berechnung und ohne Zusicherung besonderer Eigenschaften ein über eigenes Vorhängeschloss verschließbarer Kellerraum zur Verfügung gestellt. In jedem Keller befindet sich Beleuchtung und eine Steckdose, die über den eigenen Zähler der zugeordneten Wohnung abgerechnet werden. Alle Mietangaben sind Netto-Kaltmieten. Die Heizkosten entstehen in Form von Gasverbrauch, da für jede Wohnung eine eigenständige GAS / Warmwasser-Heizung installiert ist. An kalten Betriebskosten fallen lediglich die umlegbaren Versicherungen, die Müllgebühren und Hauswartedienstleistungen die Kosten für Frisch- und Abwasser (gem. Zähler in der Wohnung) für die Aus- und Einbringung der Mülltonnen, die Treppenhausreinigung und die Hofreinigung sowie die städtischen Anliegerkosten an. Bis genauere Angaben zur Nebenkostenabrechnung vorliegen, wird ein Nebenkostenvorschuss von ca. 1,50 €/m² in Anrechnung gebracht, der aber nach einem Jahr exakt abgerechnet wird. Die kalten Betriebskosten werden nach Satz 1 § 27 der zweiten Berechnungsverordnung ermittelt und jährlich abgerechnet.

Energieausweis

Eine Provision für die Vermietung fällt nicht an. Als Kaution werden bei Einzug / Schlüsselübergabe vor Beginn des Mietzeitraumes drei Monatsmieten fällig, die bei ordnungsgemäßem Auszug zurück gereicht werden. Da der Gesetzgeber auch die Möglichkeit der Kautionszahlung in drei Raten fordert, beträgt die Kaution wahlweise drei Monatsmieten, von denen die erste Kautionsteilzahlung zusammen mit der ersten Monatsmiete bei Wohnungsübernahme zu Beginn des Mietzeitraumes zu entrichten ist. Interessenten werden gebeten einen Besichtigungstermin unter Handy: 0151 / 56 16 42 09 zu vereinbaren.